Mes projets...
Le Vésinet,
suite parentale...
Rénovation et aménagement d’un dernier étage
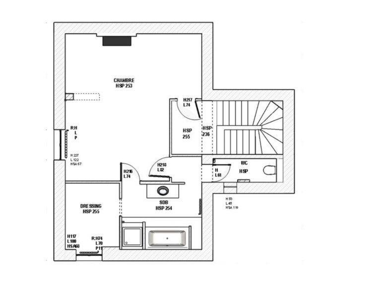
Les clients souhaitaient repenser l’espace non exploité du 2ème étage de leur maison. Leur demande: créer une suite parentale et un espace buanderie, tout en conservant la disposition de la salle de bain existante. Soucieux de respecter dans la mesure du possible une démarche écoresponsable, le choix de matériaux écologiques et de mobilier de récupération a été primordial dans cette élégante rénovation.
- Quoi? 2ème étage d'une maison de 200m2
- Où? dernier étage d'une maison ancienne en meulière au Vésinet
- Avant? une grande pièce non exploitée, une salle de bain à moderniser, un dressing sombre...en bref, beaucoup de potentiel mais un espace parental à inventer
- Objectif? rénover, redéfinir et optimiser les espaces
-
Mission? Conception complète + suivi esthétique du chantier
- Après? un 2ème étage fonctionnel, dédié aux parents dans un esprit cosy "art déco"
L'état des lieux
L'avant-projet détaillé
L'avant-Après travaux
